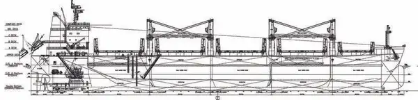
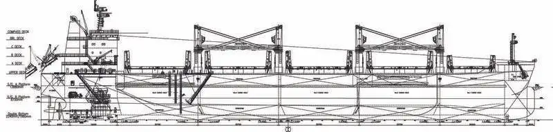
| Granéis 63.200 DWT | |
| ID do navio | 9862 |
| Categoria | Graneleiro |
| Construir ano | 2020 |
| Data de adição do navio | 2025-10-25 |
| Adicionado por | Global Work Boats |
Peso medido
| DWT | 63200 |
Dimensões do navio
| Comprimento total (LOA), m | 199.9 |
| Profundidade, m | 9.9 |
Informações adicionais
| Automotor | |
| Decks | 1 |
| Navios semelhantes | Mostrar navios semelhantes |
| solicitações de | Correspondência de solicitações de compra |
| o email | Enviar email |

